Центральный рынок выставили на продажу в Красноярске
1132
17 декабря 2025
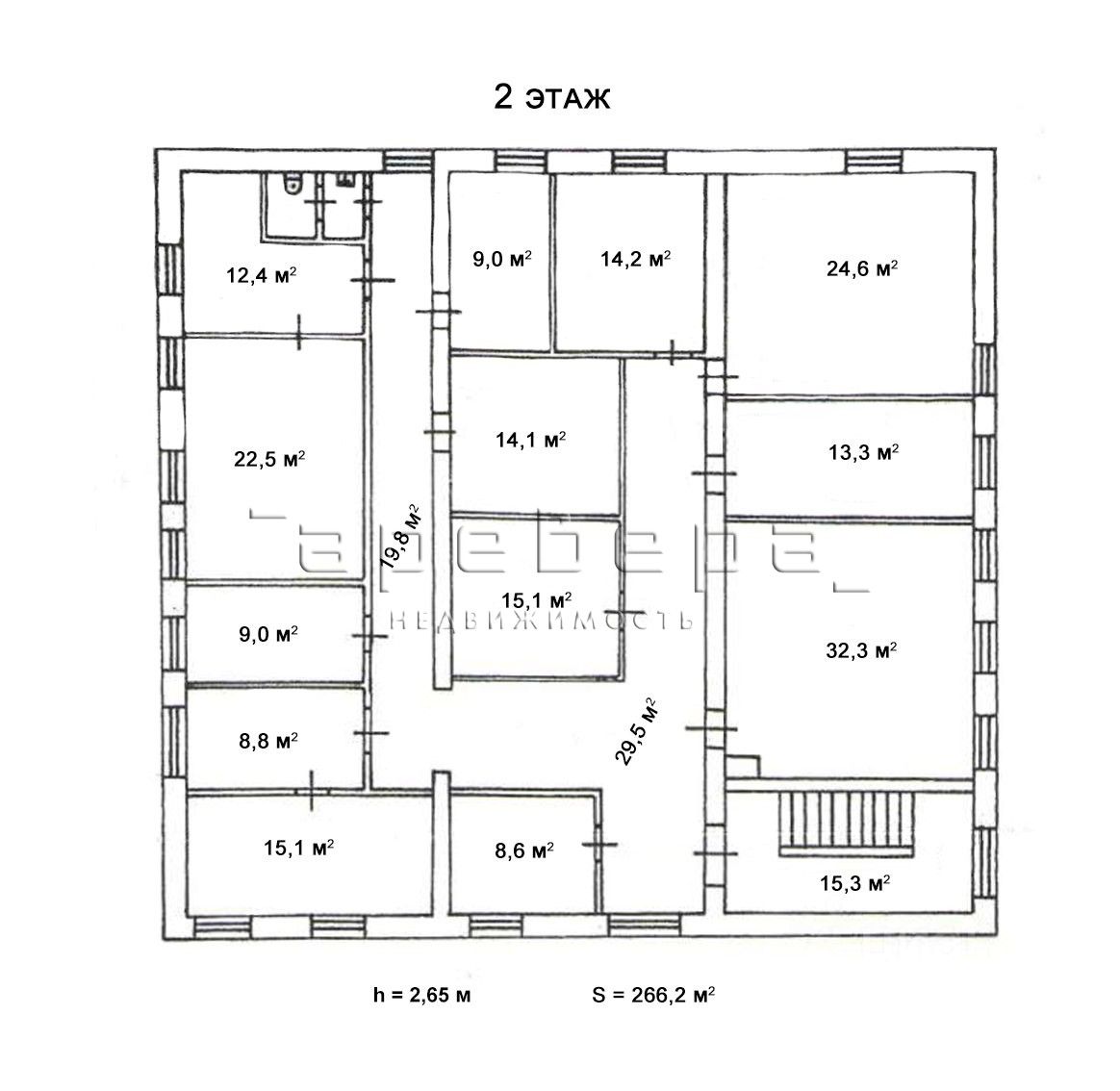
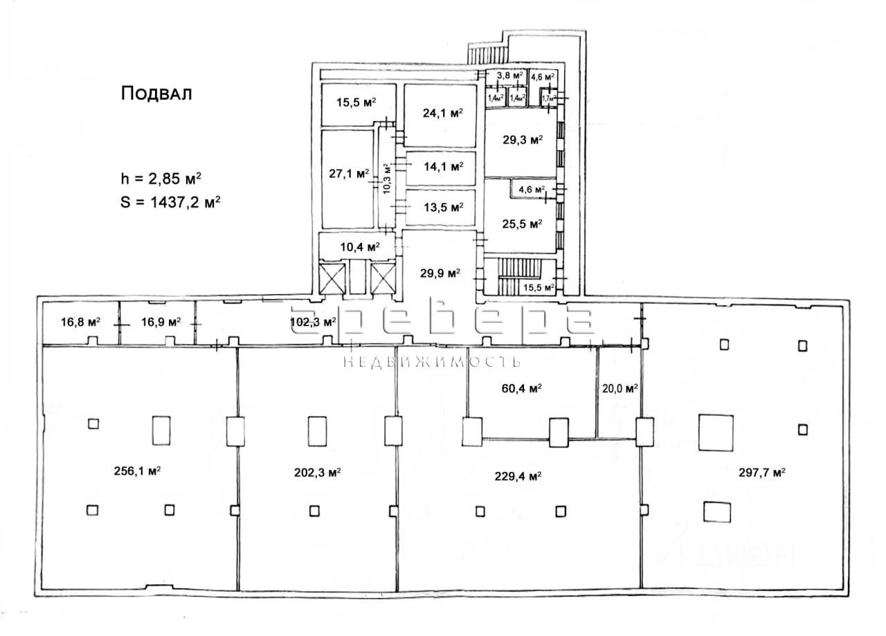
В Красноярске продают здание Центрального рынка на Качинской, 64. Стоимость лота – 335 млн рублей.
Объявление появилось на одном из сайтов по продаже недвижимости.
Также прилагаются торговые павильоны общей площадью 1336,6 кв. м. Продавец указывает, что в стоимость входит и земельный участок площадью почти 17,7 тысяч кв. м.В нем указано, что общая площадь здания – 5520 кв. м. Это подвал и два этажа.
Отметим, что Центральный рынок уже выставляли на продажу. В 2023 году объект хотели продать за 160 млн рублей.«Все коммуникации: электричество 200кВт, водоснабжение, канализация и теплоснабжение – централизованные. Участок в собственности. Помещения сданы в аренду», – сообщается в объявлении.
Другое по теме:
Последние новости
- 17:16 «Вопросы юристу»: имеет ли право риелторская компания продавать аварийное жилье?
- 12:38 «Все достойно организовано»: как прошел родительский день в Красноярске
- 12:05 На одного из красноярских «королей госзаказов» возбудили уголовное дело по двум статьям
- 11:23 «Зубы у местных жителей теряются гораздо раньше, чем на материке»: красноярские стоматологи вернулись из арктического поселка Новорыбная
- 10:15 Тела погибших в горах Бурятии красноярских туристов эвакуируют в тяжелых условиях








